Khám phá bí mật mặt bằng đẳng cấp tại Vinhomes Grand Park – một dự án bất động sản nổi bật tại TP.HCM với thiết kế thông minh và đa dạng loại căn hộ, từ studio đến 3 phòng ngủ, mang lại không gian sống lý tưởng cho mọi gia đình. Để biết thêm chi tiết và nhận tư vấn từ chuyên gia, quý khách có thể liên hệ hotline 1900 998 823 hoặc truy cập xaydungsongphat.com để xem thêm thông tin hữu ích.
Mặt bằng căn hộ Vinhomes Grand Park được thiết kế một cách thông minh với nhiều điểm nổi bật, góp phần lớn vào thành công của dự án này trên thị trường bất động sản tại TP.HCM. Hãy khám phá chi tiết về mặt bằng các căn hộ tại đại đô thị Vinhomes Grand Park qua nội dung bài viết sau đây.
* Nội dung bài viết chỉ mang tính chất tham khảo tại thời điểm chia sẻ. Để có thông tin chính xác và đầy đủ, mời quý khách liên hệ hotline 1900 998 823 để đặt lịch hẹn tư vấn cùng các chuyên gia từ chủ đầu tư Vinhomes.
Mặt bằng căn hộ Vinhomes Grand Park studio
Nằm tại những phân khu cao tầng của khu đô thị Vinhomes Grand Park, các căn hộ được thừa hưởng lợi thế về vị trí, cảnh quan và đầy đủ tiện ích cao cấp. Đây chính là yếu tố hấp dẫn khiến đông đảo khách hàng và nhà đầu tư bất động sản quận 9, TP.HCM chú ý ngay từ khi mới giới thiệu ra thị trường.
Tại Vinhomes Grand Park, chủ đầu tư không chỉ tập trung vào một loại sản phẩm mà đa dạng hóa với nhiều diện tích và công năng linh hoạt, bao gồm: căn hộ studio (28 – 36m2), căn hộ 1 phòng ngủ (1PN) (30 – 45m2), căn hộ 2 phòng ngủ (2PN) (58 – 70m2), và căn hộ 3 phòng ngủ (71 – 82m2).
Mặt bằng căn hộ Vinhomes Grand Park studio được thiết kế theo phong cách “all in one”, vừa mới lạ vừa hiện đại với không gian sinh hoạt và ngủ nghỉ thông suốt, không có vách ngăn (trừ WC). Mọi tiện ích được bố trí khéo léo trên một mặt sàn diện tích nhỏ gọn nhưng vẫn đảm bảo đầy đủ chức năng như một căn hộ tiêu chuẩn.
Hơn nữa, thiết kế mở tạo sự linh hoạt trong sinh hoạt hàng ngày. Hệ thống cửa sổ kính và ban công rộng thoáng được bố trí hợp lý, làm cho căn hộ lúc nào cũng ngập tràn ánh sáng tự nhiên và gió trời tươi mát. Sự thông thoáng này giúp tiết kiệm chi phí cho những sinh hoạt như chiếu sáng và vệ sinh căn hộ

Mặt bằng căn hộ Vinhomes Grand Park studio
Hướng tới cuộc sống tối giản và tự do, căn hộ studio Vinhomes Grand Park là lựa chọn lý tưởng cho những người trẻ độc lập, học sinh, sinh viên có điều kiện tài chính tốt, hay các chuyên gia và doanh nhân nước ngoài thường xuyên công tác tại Sài Gòn. Đây cũng là cơ hội đầu tư hấp dẫn cho những ai muốn tìm kiếm khoản sinh lời từ bất động sản.
Mặt bằng căn hộ Vinhomes Grand Park 1PN – 1 WC
Khác với căn hộ studio, căn hộ 1 phòng ngủ Vinhomes Grand Park được thiết kế với một phòng ngủ tách biệt, kèm theo một phòng khách thông suốt với khu bếp và bàn ăn, một WC, và một logia rộng rãi, tạo nên không gian sống tinh tế, tiện nghi và ấm cúng.
Hơn nữa, khu đô thị còn có dòng sản phẩm căn hộ 1PN + 1 đa năng, cho phép chủ nhân thoải mái sáng tạo và thiết kế không gian phù hợp với sở thích và nhu cầu cá nhân của từng gia đình. Không gian +1 này có thể được…
Không gian này có thể được sử dụng đa chức năng như làm việc, làm phòng ngủ nhỏ cho khách ghé thăm, khu vực học tập cho trẻ hoặc biến thành một góc xanh xinh tươi với các chậu cây cảnh nhỏ, góp phần nâng cao giá trị thẩm mỹ của toàn bộ căn hộ.

Mặt bằng căn hộ Vinhomes Grand Park 1PN
Với sự tối ưu trong thiết kế để tận dụng triệt để công năng cũng như không gian, căn hộ 1 PN và 1 PN +1 trở thành lựa chọn lý tưởng cho các cặp đôi trẻ, mới lập gia đình đang khao khát một tổ ấm riêng tư, lãng mạn, hoặc các chuyên gia, kỹ sư nước ngoài thường xuyên đến Việt Nam công tác cần một nơi lưu trú rộng rãi để thoải mái làm việc.
Mặt bằng căn hộ Vinhomes Grand Park 2PN
Mặt bằng căn hộ Vinhomes Grand Park 2PN được thiết kế gồm: 2 phòng ngủ riêng, 1 – 2 nhà vệ sinh, 1 không gian khách kèm bếp và bàn ăn liền mạch với nhau, cùng với 2 logia thoải mái.
- Căn hộ 2PN – 1WC: khoảng diện tích từ 58,5 – 61,2 m2: Nhà vệ sinh được thiết kế gần với cửa ra vào, tạo thuận tiện cho sinh hoạt của cả gia đình và những lúc có khách đến thăm.
- Căn hộ 2PN – 2WC: diện tích từ 67,5 – 70,3 m2: Bao gồm 1 nhà vệ sinh trong phòng ngủ lớn và 1 nhà vệ sinh gần bếp và cửa ra vào.
Với hai logia, chủ căn hộ có thể sử dụng để đặt máy giặt, phơi quần áo hoặc chứa đồ đạc, giúp không gian bên trong thêm thoáng đãng, tạo điều kiện cho các thành viên sinh hoạt thoải mái hơn.
Phòng khách, bếp và bàn ăn được sắp xếp liên tiếp, không có vách ngăn, tạo điều kiện cho các cuộc tụ họp gia đình, từ đó tăng cường sự ấm cúng, gắn bó giữa các thành viên.

Mặt bằng căn hộ Vinhomes Grand Park 2PN
Căn hộ 2PN là loại hình phổ biến nhất tại dự án Vinhomes Grand Park. Nhờ thiết kế thông minh và hiện đại, căn hộ đáp ứng nhu cầu của số đông gia đình Việt Nam. Đặc biệt, đây là lựa chọn lý tưởng cho các cặp vợ chồng có từ 1 – 2 con, muốn con cái được trưởng thành trong môi trường tiện nghi, thân thiện. Với hệ sinh thái đồng bộ và cao cấp do chủ đầu tư xây dựng, những căn hộ 2PN Vinhomes Grand Park mang đến không gian sống hiện đại, giúp trẻ em phát triển toàn diện.
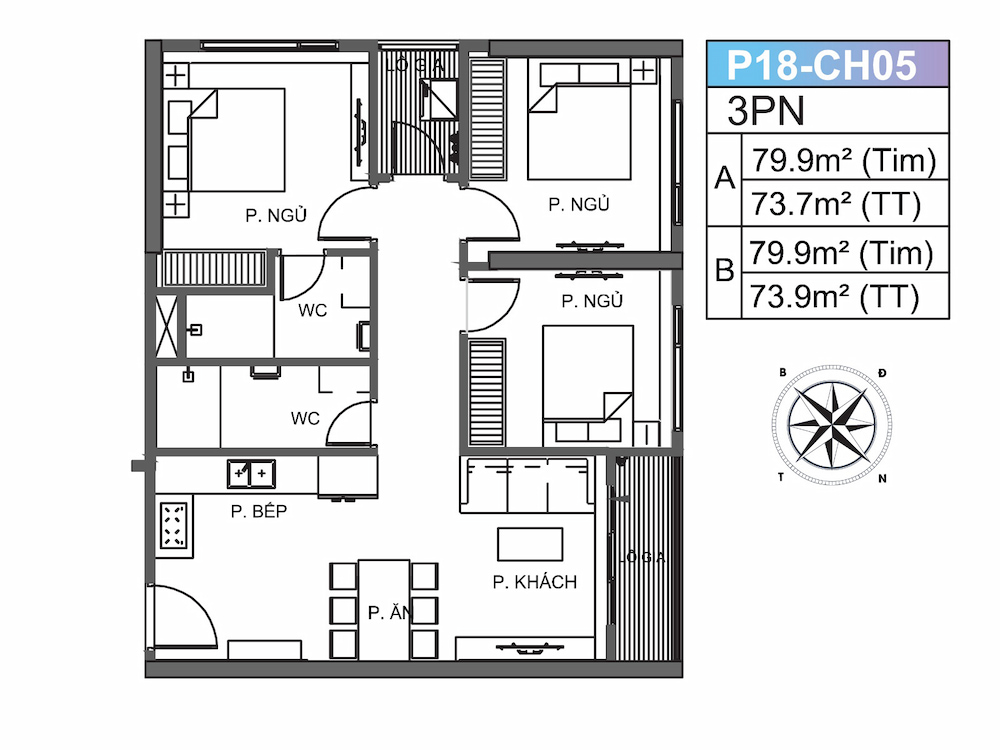
Mặt bằng căn hộ Vinhomes Grand Park 3PN
Bên cạnh căn hộ studio, 1PN và 2PN, khu căn hộ Vinhomes Grand Park còn có dạng căn hộ 3PN rộng rãi, đáp ứng nhu cầu của các gia đình đông thành viên hay nhiều thế hệ, tiếp tục truyền thống “tam đại đồng đường” tốt đẹp của người Việt.

Bản vẽ căn hộ 3 phòng ngủ tại Vinhomes Grand Park
Thiết kế căn hộ 3 phòng ngủ ở Vinhomes Grand Park gồm có: 3 phòng ngủ riêng biệt, 2 phòng tắm, 1 logia và khu vực sinh hoạt chung bao gồm phòng khách, bếp và bàn ăn không có vách ngăn. Cách sắp xếp trong căn hộ vừa đem lại sự riêng tư cho từng thành viên, vừa thúc đẩy sự kết nối và tăng cường tình cảm gia đình.
Với lợi thế về diện tích, căn hộ này được đặt ở các góc của tòa nhà, cung cấp tầm nhìn rộng rãi và thoáng đãng, cùng với hệ thống cửa sổ kính và ban công, tối ưu hoá việc nhận ánh sáng tự nhiên và gió mát, tạo nên môi trường sống trong lành và dễ chịu cho cư dân.
Kết luận
Không chỉ hưởng lợi từ vị trí đắc địa, dịch vụ hiện đại và cảnh quan của Thành phố thông minh – công viên, căn hộ Vinhomes Grand Park được thiết kế một cách khoa học và đương đại, góp phần nâng tầm chuẩn mực sống của cộng đồng tinh hoa tại Sài Gòn.
- Email: [email protected]
* Hình ảnh trong bài viết mang tính chất minh họa. Việc vận hành khu đô thị sẽ tuân theo quy định của Ban Quản lý tại từng thời điểm.
* Các tài liệu và bản vẽ chỉ mang tính tham khảo và có thể được Chủ đầu tư cập nhật, điều chỉnh tại từng thời điểm cho từng vị trí để tối ưu hóa việc sử dụng và đảm bảo sự hài hòa với thiết kế tổng thể của Dự án.
Hãy ghé thăm Tin tức để không bỏ lỡ những thông tin hấp dẫn và cập nhật mới nhất. Đọc nhiều hơn sẽ giúp bạn nắm bắt xu hướng và mở rộng kiến thức hiệu quả.




