Tọa lạc tại vị trí vàng của quận 9, tòa BE1 Vinhomes Grand Park trong tiểu khu The Beverly không chỉ sở hữu thiết kế tinh tế mà còn tích hợp nhiều tiện ích hiện đại, mang đến một không gian sống lý tưởng cho cư dân Sài Gòn. Với quy mô 479 căn hộ cao cấp, dự án này hứa hẹn sẽ là lựa chọn hoàn hảo cho những ai tìm kiếm một môi trường sống đẳng cấp. Để tìm hiểu thêm về các dự án xây dựng chất lượng, hãy ghé thăm xaydungsongphat.
Tòa BE1 Vinhomes Grand Park, thuộc tiểu khu The Beverly, nổi bật với vị trí đắt giá, thiết kế thông minh và tiện ích đa dạng. Đây được xem là nơi ở lý tưởng cho những cư dân tinh hoa tại Sài Gòn nhờ những lợi thế vượt trội và cảnh quan đồng bộ.
* Các thông tin trong bài viết mang tính tham khảo tại thời điểm chia sẻ. Để biết thông tin chi tiết, xin vui lòng liên hệ hotline 1900 998 823 để được tư vấn cùng các chuyên gia bất động sản từ chủ đầu tư Vinhomes.
Tổng quan về tòa BE1 Vinhomes Grand Park
Tòa BE1, thuộc quy hoạch của khu đô thị thông minh – công viên Vinhomes Grand Park, phân khu The Beverly, nằm trong dòng Vinhomes Ruby cao cấp. Đây là nơi hứa hẹn mang đến những trải nghiệm sống đỉnh cao cho cộng đồng cư dân thành đạt tại TP.HCM.
Thông tin tổng quan về tòa BE1 Vinhomes Grand Park bao gồm:
- Chủ đầu tư: Vinhomes
- Vị trí: Phân khu The Beverly tại đại đô thị Vinhomes Grand Park, quận 9
- Quy mô: 479 căn hộ cao cấp và 14 căn shophouse hiện đại
- Loại hình căn hộ: Studio, 1PN, 2PN, 3PN
- Diện tích căn hộ: Từ 34,7m2 đến 101m2
- Chiều cao: 34 tầng nổi và 2 tầng hầm để xe
- Mật độ xây dựng:
- Tầng 2: 14 căn/sàn
- Tầng 3 – 34: 15 căn/sàn
- Tầng 14: Tầng lánh nạn
- Thang máy: 6 thang cho cư dân, 1 thang hàng và 2 thang bộ thoát hiểm
- Tiêu chuẩn bàn giao: Hoàn thiện theo tiêu chuẩn cao cấp Ruby (nội thất cơ bản)
Vị trí tòa BE1 Vinhomes Grand Park quận 9
Nằm trong dự án đô thị thông minh và công viên, tòa BE1 được ưu ái với vị trí địa lý thuận lợi, có khả năng liên kết giao thông hiệu quả đến các khu vực kinh tế, hành chính, du lịch và thương mại chủ chốt của TP.HCM, cũng như các tỉnh thành lân cận. Cụ thể:
- Chỉ cách trung tâm hành chính quận 9 TP.HCM và sân golf Thủ Đức 3 phút lái xe
- 5 phút đến đại học Fulbright và khu công nghệ cao 1, 2
- 10 phút để đến bến xe miền Đông và du lịch Suối Tiên
- 40 phút di chuyển đến trung tâm TP.HCM
- Mất vài giờ lái xe đến các thành phố như Vũng Tàu hay Đồng Nai

Vị trí tòa BE1 Vinhomes Grand Park
Các mặt tiếp giáp cụ thể của tòa BE1 Vinhomes Grand Park được xác định như sau:
- Hướng Bắc: Liền kề tòa nhà BE7 Vinhomes Grand Park, với tầm nhìn ra sân cỏ sự kiện, gần rạp chiếu phim ngoài trời hiện đại, hồ sương mù và khu vườn nhiệt đới.
>>> Có thể bạn quan tâm: Tòa BE2 Vinhomes Grand Park | Giá & Chính sách bán mới nhất
Mặt bằng tòa BE1 Vinhomes Grand Park
Tòa BE1 The Beverly được thiết kế theo hình chữ Z với mật độ xây dựng thấp, chỉ từ 14 đến 15 căn hộ mỗi tầng, tạo nên một môi trường sống rộng rãi, tiện nghi và thoải mái cho cộng đồng dân cư thành đạt tại TP. Hồ Chí Minh.
Bên trong tòa BE1 Vinhomes Grand Park, chủ đầu tư đã lắp đặt 7 thang máy và 2 thang thoát hiểm để đáp ứng nhu cầu di chuyển của cư dân.
Mặt bằng tầng điển hình tòa BE1 Vinhomes Grand Park
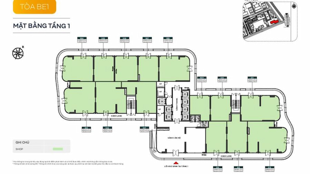
- Mặt bằng tầng 1: Khu vực shophouse sống động và nhộn nhịp

Mặt bằng tầng 1 tòa BE1 Vinhomes Grand Park
- Mặt bằng tầng 2: Bao gồm 1 căn hộ studio, 5 căn hộ 1 phòng ngủ, 6 căn hộ 2 phòng ngủ và 2 căn hộ 3 phòng ngủ

Mặt bằng tầng 2 tòa BE1 Vinhomes Grand Park
- Mặt bằng tầng 3 – 13: Gồm 1 căn hộ studio, 5 căn hộ 1 phòng ngủ, 6 căn hộ 2 phòng ngủ và 3 căn hộ 3 phòng ngủ

Mặt bằng tầng 3 – 13 tòa BE1 Vinhomes Grand Park
- Mặt bằng tầng 15 – 34: Bố trí tương tự các tầng từ 3 đến 13

Mặt bằng tầng 15 – 34 tòa BE1 Vinhomes Grand Park
15 – 34 tòa BE1 Vinhomes Grand Park
Sơ đồ mặt bằng căn hộ tại tòa BE1 Vinhomes Grand Park
Để đáp ứng đa dạng nhu cầu khách hàng, chủ đầu tư đã phát triển phong phú các loại căn hộ trong tòa BE1 Vinhomes Grand Park với diện tích và công năng thiết kế linh hoạt.
Loại căn hộ studio: Với diện tích 34,7m2, căn hộ này được thiết kế không gian mở, kết hợp khu vực tiếp khách, ngủ nghỉ, và nấu ăn lại với nhau, tạo ra môi trường sống hiện đại và thuận tiện mà không cần sử dụng vách ngăn.
Việc bố trí hợp lý đã giúp tối ưu hóa diện tích và công năng sử dụng của căn studio BE1, rất phù hợp cho những khách hàng trẻ tuổi yêu thích sự tự do, tiện lợi, hay những chuyên gia, doanh nhân quốc tế thường xuyên công tác tại Thành phố Hồ Chí Minh. Đây cũng là nhóm khách hàng tiềm năng cho dòng căn hộ đặc biệt này.
Loại căn hộ 1PN + 1: Diện tích từ 53,3m2 đến 55,1m2, đi kèm đầy đủ các phòng chức năng cần thiết trong cuộc sống hàng ngày. Nhà vệ sinh được bố trí ngay gần cửa ra vào giúp tạo thuận tiện cho cư dân và khách mời đến thăm. Bên cạnh đó, căn hộ 1PN có một không gian đa năng +1 rộng, có thể được chuyển đổi thành nơi làm việc nhỏ, góc học tập hay phòng ngủ phụ linh hoạt.

Bản vẽ căn hộ 1PN + 1 tòa BE1 Vinhomes Grand Park
Nhiều cặp vợ chồng mới cưới lựa chọn căn hộ 1PN để làm tổ ấm tương lai, hoặc cư dân lớn tuổi tìm kiếm không gian sống tiện nghi, yên bình, lý tưởng để an hưởng tuổi già.
Loại căn hộ 2PN (2WC): Với diện tích từ 78,7m2 đến 80m2, căn hộ này có thiết kế thông minh và hiện đại. Hệ cửa kính lớn cùng ban công rộng giúp tạo không gian thoáng đãng và mát mẻ cho cư dân.

Sơ đồ căn hộ 2PN tòa BE1 Vinhomes Grand Park
Căn hộ 2PN ở tòa BE1 The Beverly là lựa chọn tối ưu cho gia đình từ 3-4 thành viên, đặc biệt là các cặp vợ chồng có 1-2 con nhỏ, mong muốn môi trường sống văn minh, hiện đại cho con trẻ. Thiết kế 2 phòng ngủ liền kề không chỉ thuận lợi trong việc chăm sóc các bé mà còn duy trì được sự riêng tư cần thiết cho mỗi người.
Loại căn hộ 3PN: Với diện tích từ 100,1m2 đến 101,6m2, đây là dòng căn hộ có diện tích lớn nhất, nằm ở góc tòa nhà, tận dụng 2 mặt tiền thoáng đãng để ánh sáng và gió tự nhiên dễ dàng tràn ngập khắp căn hộ.

Bố trí căn hộ 3 phòng ngủ tại tòa BE1 Vinhomes Grand Park
Thiết kế căn hộ 3 phòng ngủ rất phù hợp cho các gia đình đa thế hệ từ năm người trở lên, giúp duy trì và phát huy nếp sống “tam đại đồng đường” – một giá trị truyền thống quý báu của văn hóa Việt Nam.
>>> Có thể bạn muốn xem: Tòa BE3 Vinhomes Grand Park | Thiết kế cập nhật mới nhất
Tiện ích tòa BE1 Vinhomes Grand Park
Tòa nhà BE1 Vinhomes Grand Park mang lại một hệ thống tiện ích và cảnh quan sang trọng, đồng bộ, đóng góp vào phong cách sống tiện nghi và đẳng cấp cho cộng đồng tinh hoa tại Thành phố Hồ Chí Minh. Sống tại BE1 The Beverly, cư dân sẽ được hưởng không gian sống cao cấp tiêu chuẩn 5 sao với nhiều tiện ích nội khu tuyệt vời như:
- Con đường đi bộ mát mẻ
- Công viên xanh mướt với đài phun nước lộng lẫy và hàng ghế đá cho cư dân thư giãn, thoại
- Khu thể thao hiện đại với nhiều môn thể thao như: bóng rổ, bóng chuyền, cầu lông, tennis,…
- Hồ bơi Marina Pool với 3 tầng
- Khu tập Gym hiện đại ngoài trời
- Khu vực đón khách thanh lịch và sang trọng
- Phòng sinh hoạt chung, thư viện,…
Một điểm nhấn nổi bật của căn hộ BE1 chính là sự kết nối dễ dàng với khu vực cao cấp The Manhattan thông qua Đại lộ ánh sáng độc đáo cùng hàng loạt tiện ích xa hoa xứng tầm.
Ngoài ra, cư dân tại BE1 Vinhomes Grand Park có cơ hội thư giãn và mua sắm tại trung tâm thương mại Vincom Mega Mall 3 tầng. Nơi đây hội tụ nhiều nhà hàng đa dạng nét văn hóa ẩm thực trên toàn quốc cũng như các gian hàng thời trang và mỹ phẩm quốc tế nổi tiếng.
Đặc biệt, trẻ em sống tại BE1 The Beverly sẽ được giáo dục và phát triển toàn diện tại hệ thống trường học liên cấp Vinschool – một trong những đơn vị giáo dục uy tín nhất Việt Nam với chương trình giảng dạy chuẩn quốc tế và cơ sở vật chất hiện đại.
Giá bán tòa BE1 Vinhomes Grand Park
Các căn hộ tại tòa BE1 Vinhomes Grand Park được phân phối với giá cả linh hoạt dựa trên thời điểm, diện tích, vị trí và hướng căn hộ, đáp ứng nhu cầu của các khách hàng với khả năng tài chính khác nhau. Để biết thêm thông tin về giá cả căn hộ cao cấp tại BE1, quý khách hàng vui lòng để lại thông tin hoặc liên lạc với phòng bán hàng theo số hotline: 1900 2323 89.
Nội thất bàn giao căn hộ tòa BE1 Vinhomes Grand Park
Các căn hộ tại tòa BE1 Vinhomes Grand Park được bàn giao với tiêu chuẩn Ruby cao cấp:
- Sàn: lát bằng gỗ công nghiệp cao cấp, trừ phòng tắm và ban công được lát gạch ceramic
- Tường: sơn nước hai lớp, phòng tắm ốp gạch ceramic
- Trần: thạch cao, sơn nước
- Cửa: cửa sổ kính, khung nhôm sơn tĩnh điện; cửa ra vào bằng gỗ công nghiệp chống cháy
- Bếp, nhà vệ sinh: trang bị đầy đủ thiết bị, nội thất liền tường
- Thiết bị điện, bình nóng lạnh, điều hòa không khí
- Hệ thống chuông cửa liên kết với tầng hầm và tầng 1
Kết
Với nhiều ưu thế nổi bật về vị trí, thiết kế, cảnh quan và tiện ích, tòa BE1 Vinhomes Grand Park thực sự là lựa chọn hoàn hảo của cư dân tinh hoa tại Thành phố Hồ Chí Minh.
Để có thêm thông tin chi tiết, quý khách hàng vui lòng liên hệ Vinhomes Market qua:
- Email: [email protected]
* Chủ Đầu Tư có thể thay đổi/điều chỉnh vật liệu, trang thiết bị của Căn Hộ với chất lượng tương đương.
* Bản vẽ và các thông số kỹ thuật có thể được điều chỉnh theo thẩm quyền của Chủ Đầu Tư tại từng thời điểm.
Đừng bỏ lỡ cơ hội tìm hiểu thêm thông tin thú vị bằng cách ghé thăm Tin tức của chúng tôi, nơi cung cấp nhiều kiến thức bổ ích.




