Khu San Hô tại Vinhomes Ocean Park 2 The Empire là sự kết hợp hoàn hảo giữa phong cách kiến trúc tinh tế của Châu Âu và sự nhộn nhịp của công viên tạo sóng Royal Wave Park, trở thành điểm đến lý tưởng cho những ai yêu thích lối sống hiện đại.
* Thông tin trong bài viết có tính tham khảo tại thời điểm công bố. Quý khách vui lòng liên hệ hotline 1900 998 823 để đặt hẹn tư vấn chi tiết cùng đội ngũ chuyên gia bất động sản của Vinhomes.
Tổng quan về khu San Hô Vinhomes Ocean Park 2 The Empire
Trong số các khu tại dự án, San Hô Vinhomes Ocean Park 2 Văn Giang Hưng Yên mang một diện tích rộng lớn lên đến 39ha. Nét nổi bật của khu vực này là bể bơi mô phỏng hình sóng biển, cùng với các công trình nghệ thuật và quảng trường Viễn Chinh.
Dưới đây là thông tin tổng quan về khu San Hô Vinhomes Ocean Park 2 The Empire:
- Tổng diện tích khu vực: 39 ha
- Phong cách thiết kế: Châu Âu
- Số lượng sản phẩm: 2.168 căn hộ thấp tầng
- Biệt thự đơn lập: 8 căn
- Biệt thự song lập: 52 căn
- Nhà phố đơn lập: 11 căn
- Nhà phố song lập: 80 căn
- Liền kề: 1514 căn
- Shophouse: 503 căn
- Thời gian chuyển giao:
- Bàn giao thô: 12/2022 – 01/2023
- Hoàn thiện: 04/2023 – 06/2023

Hình ảnh minh họa: Quang cảnh tổng thể khu San Hô Vinhomes Ocean Park 2 The Empire
>>> Có thể bạn sẽ hứng thú với: Khu Chà Là Vinhomes Ocean Park 2 The Empire
Địa điểm khu San Hô Vinhomes Ocean Park 2 The Empire
Khu San Hô sở hữu vị trí đắc địa nhất tại đô thị Vinhomes Ocean Park 2 The Empire, với các hướng tiếp giáp nổi bật như sau:
- Đông Bắc: gần công viên Royal Wave Park
- Tây Bắc: gần đường vành đai 3.5
- Đông Nam: gần khu Ngọc Trai và đường 30 xuyên tâm dự án
- Tây Nam: tiếp xúc với khu Kinh Đô và đường 51
Được toạ lạc tại vị trí dễ dàng kết nối giao thông, cư dân tại đây chỉ mất vài phút để tiếp cận công viên Royal Wave Park, với bãi biển tạo sóng rộng 5.4ha, công viên Sandy Park rộng 1ha, khu vực trượt nước đầy sắc màu, chuỗi nhà hàng Pacific,… mang lại những trải nghiệm đặc biệt tại “đại kỳ quan” của Vinhomes Ocean Park 2 The Empire.
Hình ảnh minh họa: Khu San Hô Vinhomes Ocean Park 2 The Empire với vị trí siêu kết nối
Quy hoạch mặt bằng khu San Hô Vinhomes Ocean Park 2 The Empire
Khu San Hô Vinhomes Ocean Park 2 The Empire trải rộng trên diện tích 39ha và sở hữu 2168 căn thấp tầng. Tựa như khu Ngọc Trai, khu này được thiết kế biệt lập với các khu vực khác và bao gồm 23 dãy nhà.
Các loại biệt thự tại khu San Hô đa dạng như sau:
- 95 căn Shophouse mặt tiền nhìn ra đại lộ San Hô với chiều rộng 51m
- 51 căn Shophouse mặt tiền hướng ra đường Đại Dương rộng 30m
- Các Shophouse trên đường San Hô 30 hướng ra Hồ tạo sóng đầy ấn tượng
- 14 căn biệt thự Song Lập dọc theo mặt đường Đại Dương 30m
- Cùng nhiều căn liền kề góc với tầm nhìn đẹp mắt
Hình ảnh minh họa: Mặt bằng quy hoạch khu San Hô Vinhomes Ocean Park 2 The Empire
Thiết kế khu San Hô Vinhomes Ocean Park 2 The Empire
Tại khu San Hô Vinhomes Ocean Park 2 The Empire, các biệt thự mang phong cách Châu Âu hiện đại với sắc trắng tinh khôi, nét thiết kế độc đáo cùng mái dốc và cửa sổ rộng tạo nên đặc trưng riêng.
Đặc biệt, bao quanh những căn biệt thự này là không gian sôi động của công viên biển tạo sóng Royal Wave Park và những dãy phố cao cấp, càng làm cho chúng thêm thu hút.
Các loại sản phẩm tại khu San Hô Vinhomes Ocean Park 2 The Empire
Tại khu San Hô, các loại hình sản phẩm đa dạng bao gồm biệt thự liền kề, đơn lập, song lập và shophouse.
Biệt thự San Hô Vinhomes Ocean Park 2 The Empire
Với số lượng giới hạn nhưng lại tọa lạc tại vị trí đẹp nhất, biệt thự tại khu San Hô Vinhomes Ocean Park 2 The Empire đang hấp dẫn không ít giới thượng lưu.
Biệt thự tại khu San Hô Vinhomes Ocean Park 2 The Empire bao gồm hai loại hình chính:
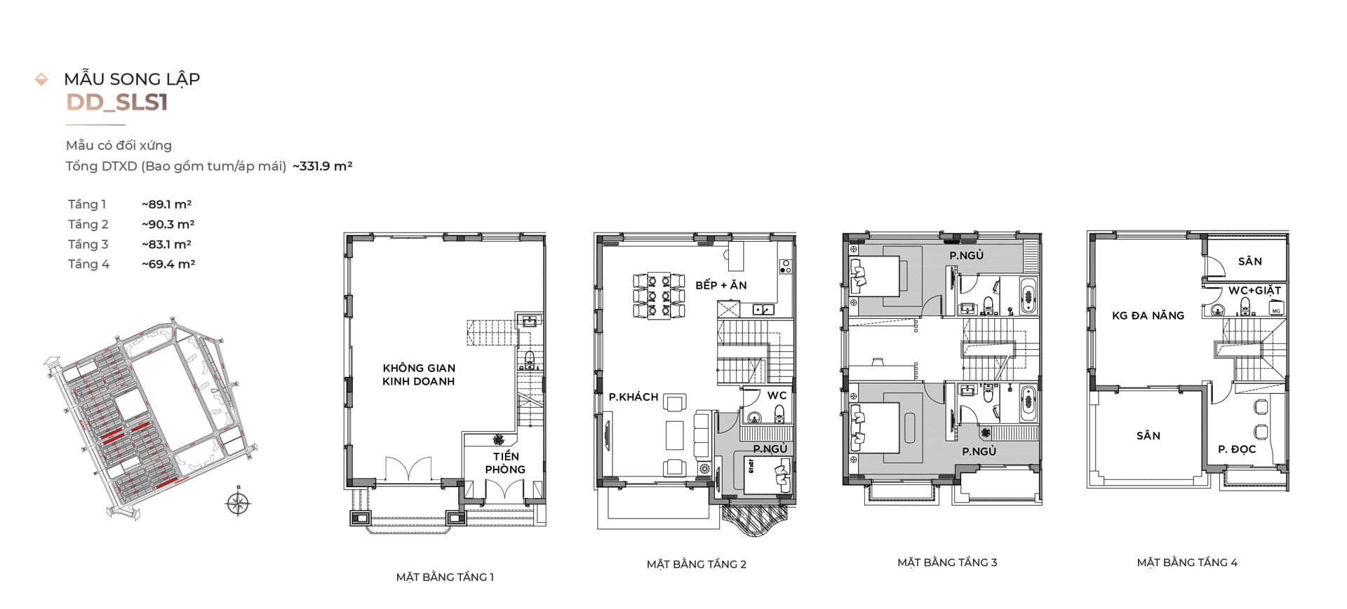
- Biệt thự đơn lập: diện tích từ 192 – 320m2, cao 4 tầng, tất cả đều là căn góc.
- Biệt thự song lập: diện tích dao động từ 120 – 200m2, cao 4 tầng.

Hình ảnh minh họa: Bản đồ biệt thự San Hô Vinhomes Ocean Park 2 The Empire
Nhà liền kề San Hô tại Vinhomes Ocean Park 2 The Empire
Nằm sát hồ tạo sóng, những căn nhà liền kề San Hô tại Vinhomes Ocean Park 2 The Empire nổi bật với vị trí thuận lợi cho giao thông. Mỗi biệt thự cũng được bố trí dọc theo các trục đường lớn, thẳng tới Hồ và Đại lộ San Hô rộng 51m, mang lại sự thuận tiện di chuyển cho cư dân nơi đây.
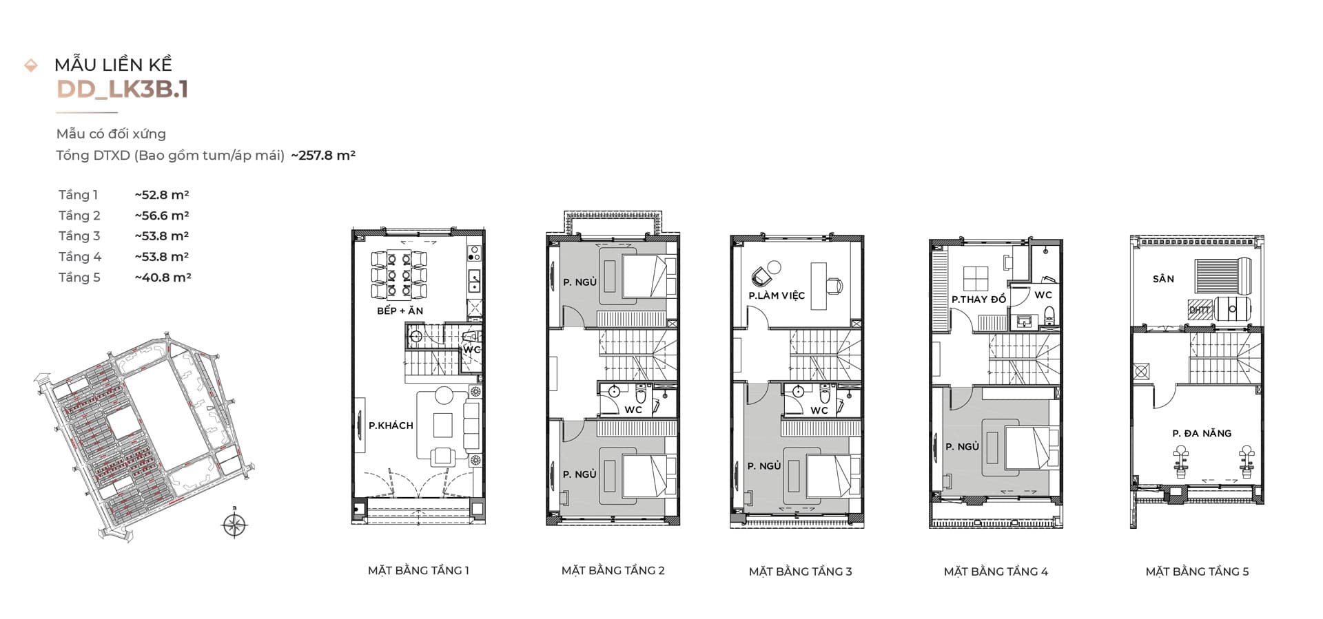
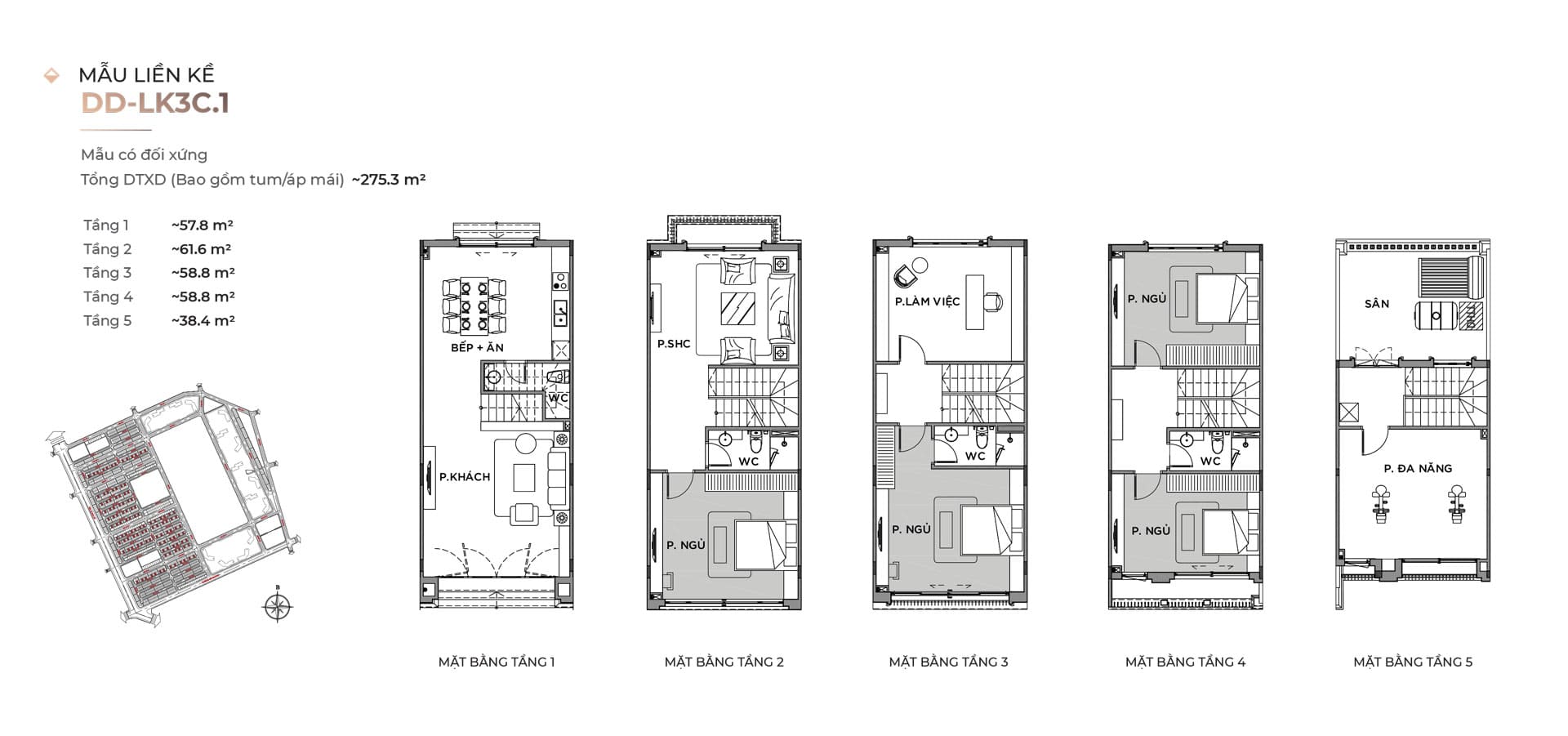
Nhà liền kề khu San Hô Vinhomes Ocean Park 2 The Empire có diện tích từ 48 đến 164m² và cao 5 tầng.
Hình ảnh minh họa: Bản đồ nhà liền kề San Hô Vinhomes Ocean Park 2 The Empire

Hình ảnh minh họa: Bản đồ nhà liền kề San Hô Vinhomes Ocean Park 2 The Empire
Shophouse San Hô tại Vinhomes Ocean Park 2 The Empire
Với thiết kế linh hoạt để kinh doanh hoặc sinh sống, những căn shophouse trong khu San Hô được giới đầu tư đặc biệt quan tâm. Vị trí tọa lạc trên các trục đường chính, nơi đông người qua lại, đem lại khả năng sinh lời hấp dẫn.
Thông tin chi tiết về shophouse tại khu San Hô Vinhomes Ocean Park 2 The Empire:
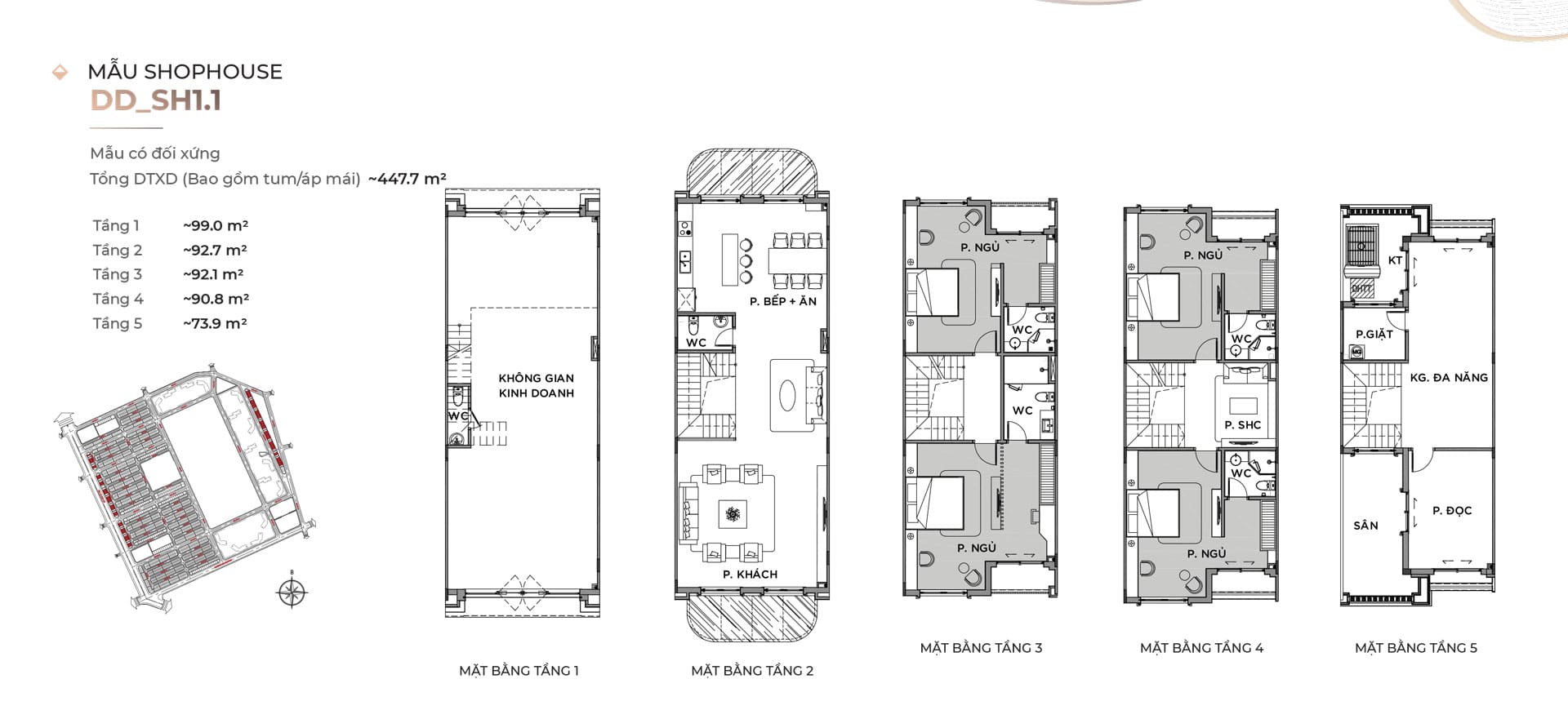
- Diện tích: từ 70m² đến 190m²
- Chiều cao: 4 tầng với tầng 1 dạng turm
- Thiết kế: Phong cách châu Âu hiện đại

Hình ảnh minh họa: Bản đồ shophouse San Hô Vinhomes Ocean Park 2 The Empire
>>> Có thể bạn quan tâm: Khu Đảo Dừa Vinhomes Ocean Park 2 The Empire
Tiện ích tại khu San Hô Vinhomes Ocean Park 2 The Empire
Gần công viên Royal Wave Park, khu San Hô Vinhomes Ocean Park 2 The Empire thừa hưởng đầy đủ các tiện nghi như biển hồ tạo sóng, trung tâm thương mại sầm uất, công viên Sandy,…
Chỉ vài phút đi bộ, người dân khu San Hô có thể tận hưởng các hoạt động hấp dẫn tại công viên nước.
Hơn thế nữa, công viên công cộng và mạng lưới trường học liên cấp xung quanh không chỉ cung cấp các hoạt động giải trí, vui chơi mà còn tạo điều kiện học tập phong phú. Sống tại đây, cư dân được trải nghiệm cuộc sống an yên, thoải mái trong một hệ sinh thái đạt chuẩn 5 sao.

Hình minh họa: Công viên Royal Wave Park rộng 18 ha
Giá bán khu San Hô Vinhomes Ocean Park 2 The Empire
Giá bán biệt thự tại khu San Hô Vinhomes Ocean Park 2 The Empire biến động tùy theo loại sản phẩm, vị trí, hướng và thời gian mua. Để biết thêm chi tiết về bảng giá biệt thự khu San Hô, quý khách vui lòng liên hệ phòng kinh doanh qua số hotline 1900 23 23 89, đội ngũ tư vấn luôn sẵn sàng hỗ trợ mọi thắc mắc của quý khách.
Chính sách bán hàng khu San Hô Vinhomes Ocean Park 2 The Empire
Thời gian áp dụng: Từ 12/08/2022 đến khi có chính sách mới thay thế.
Đối tượng áp dụng: Tất cả khách hàng mua nhà tại Vinhomes Ocean Park 2 The Empire từ 12/08/2022. Tại thời điểm khách hàng ký TTĐC/HĐMB.
Chính sách ưu đãi
- Chiết khấu 10% đối với căn thô và 12% cho căn đã hoàn thiện nếu thanh toán 100% trong vòng 15 ngày kể từ ngày đến hạn ký HĐMB
- Chiết khấu 8%/năm trên số tiền và số ngày thanh toán trước hạn.
- Chiết khấu 9% giá bán khi ký HĐMB cho thanh toán theo tiến độ thông thường.
- Hỗ trợ vay vốn lên đến 70% GTHĐ.
- Hỗ trợ lãi suất 0% trong vòng 18 tháng (trước ngày 25/12/2023).
- Hỗ trợ lãi suất 0% khi trả nợ trước hạn.
- Lãi suất 9,5%/năm đối với giá trị TTĐC đảm bảo thực hiện HĐMB.
- Tặng voucher Vinfast trị giá lên đến 200.000.000 VNĐ.
Thanh toán theo tiến độ
- Lần 1 : Đặt cọc 300 triệu VNĐ/căn ký thỏa thuận TTĐC.
- Lần 2 : Ký HĐMB 15% trong 5 ngày bao gồm cọc và 5% giá bán (Không bao gồm GTGT).
- Lần 3 : 20% giá bán Nhà ở (bao gồm GTGT), ngày 30/9/2022.
- Lần 4 : 20% giá bán Nhà ở (bao gồm GTGT), ngày 30/11/2022.
- Lần 5 : 15% giá bán Nhà ở (bao gồm GTGT), ngày 15/2/2023.
- Lần 6 : 25% giá bán Nhà ở (bao gồm GTGT) + thuế GTGT của 5% bán Nhà Ở + 100% phí bảo trì, sự kiện T4,5,6/2023.
- Lần 7 : 5% giá bán Nhà ở (không bao gồm GTGT), theo thông báo của bên bán khi Nhà Ở được cấp Giấy Chứng nhận quyền sở hữu.
Kết
Với lợi thế từ vị trí đắc địa và các tiện ích hiện đại, khu San Hô Vinhomes Ocean Park 2 The Empire sẽ là lựa chọn lý tưởng cho những nhà đầu tư bất động sản thông minh.
Để biết thêm thông tin chi tiết, quý khách vui lòng liên hệ Vinhomes Market qua:
- Email: [email protected]
* Thời gian áp dụng: Từ ngày 12/08/2022 cho đến khi có chính sách mới thay thế.
* Đối tượng áp dụng: Khách hàng đăng ký mua hoặc thuê căn hộ tại dự án Vinhomes Ocean Park 2 The Empire
Để cập nhật thêm thông tin hấp dẫn và các bài viết thú vị về bất động sản, mời quý độc giả khám phá thêm trong chuyên mục Tin tức của chúng tôi.




